Small Contemporary Home Plans : Contemporary Home Plans Robinson Plans : Contemporary house plans are also known for their rich amenities.
Get link
Facebook
X
Pinterest
Email
Other Apps
Small Contemporary Home Plans : Contemporary Home Plans Robinson Plans : Contemporary house plans are also known for their rich amenities.. Very popular small home design. You're not waiting on an architect to draw up your. Small house plan 99946 | total living area: Find small 1 story shed roof lake home designs, modern open layout mansions & more! You'll find that these homes feature walls of windows, beautifully designed outdoor living spaces, open floor plans and much more.
Contemporary house plans are also known for their rich amenities. Small house plan 99946 | total living area: The gabled entry opens into a vaulted living area and allows easy access to the kitchen. Contemporary small house plans with the construction process complete set of tiny house plans + cad set very new to tiny homes great idea and this one is just gorgeous but if i were to get solar. Our casitas & small house plans combine clean lines, functional design, high ceilings, and open concept spaces to create modern living areas that don't feel cramped or cluttered.
Contemporary Cascade 1070 Robinson Plans from robinsonplans.com The poinsettia small house plan design is based around the concept of a container house. The gabled entry opens into a vaulted living area and allows easy access to the kitchen. My wise mother, wendy, has a saying about big houses, 'it's just more to clean'. Their exteriors can feature any combination of materials such as brick, cement, stone. Contemporary home designs, also referred to as modern, became a popular architectural style from the 1940s to 1970s. Browse small house plans with photos. Natural materials such as wood and stone may create a. With the poinsettia small house design, windows are standard sash (up and down) with contemporary plaster trims.
Contemporary small house plans with the construction process complete set of tiny house plans + cad set very new to tiny homes great idea and this one is just gorgeous but if i were to get solar.
Ft., calicut home design, india house plans, kerala home design, kerala home plan, single floor homes for more details of small contemporary home design, contact (home design in calicut kozhikode. Their exteriors can feature any combination of materials such as brick, cement, stone. Hold on to your dream and your wallet with our simple contemporary house plans and low budget modern house plans with an estimated construction cost of $200,000 or less, excluding taxes and land (plus or. Find small 1 story shed roof lake home designs, modern open layout mansions & more! Browse small house plans with photos. Kerala house plan photos with two storey homes for small blocks having 2 floor, 4 total bedroom, 4 total bathroom, and ground floor area is 870 sq ft, first floors area is 8000 sq ft, hence total area is 1850 sq ft. Contemporary home designs, also referred to as modern, became a popular architectural style from the 1940s to 1970s. Very popular small home design. Prefab homes are houses that are built just like any other home, with wood and all very durable products, but done so off site. Cottages, vacation homes & cabins. With the poinsettia small house design, windows are standard sash (up and down) with contemporary plaster trims. But when they move in, they're not as excited to see how individual design with monster house plans, you can focus on the designing phase of your dream home construction. Small house plans with affordable building budget.
Browse small house plans with photos. Prefab homes are houses that are built just like any other home, with wood and all very durable products, but done so off site. These contemporary house plans and modern designs are often marked by open, informal floor plans. Natural materials such as wood and stone may create a. These houses may also come in handy for anyone seeking to downsize, perhaps.
Discover The Plan 3323 V3 Aspendale 4 Which Will Please You For Its 2 Bedrooms And For Its Contemporary Styles Bungalow House Plans Small Modern Home House Plans Uk from i.pinimg.com We offer small contemporary farmhouse home designs, simple & open contemporary ranch floor plans & more. Contemporary home designs, also referred to as modern, became a popular architectural style from the 1940s to 1970s. About 9% of these are chandeliers & pendant lights, 2% are table villa plan and drawing right side front side backside foundation wall panel installation roof panel installation ridge installation foundation installation base ground: With the poinsettia small house design, windows are standard sash (up and down) with contemporary plaster trims. The best contemporary house floor plans. Their exteriors can feature any combination of materials such as brick, cement, stone. But when they move in, they're not as excited to see how individual design with monster house plans, you can focus on the designing phase of your dream home construction. Browse cool contemporary small house plans today!
Our casitas & small house plans combine clean lines, functional design, high ceilings, and open concept spaces to create modern living areas that don't feel cramped or cluttered.
You'll find that these homes feature walls of windows, beautifully designed outdoor living spaces, open floor plans and much more. Alibaba.com offers 2,481 small contemporary homes products. Family home plans offers a wide variety of small house plans at low prices. Browse small house plans with photos. Find many small home plans at house plans and more, no matter what style, or number of floors, we have hundreds of small house designs available. You're not waiting on an architect to draw up your. Check out our collection contemporary home plans, which includes modern shed roof house designs, mid century modern ranchers with open floor plan, and contemporary home plan designs offer open floor plans, rich, swanky amenities, abundant outdoor living areas, and cool, sleek curb appeal. Small house plans can be defined as home designs with under 2,200 square feet of living area. The exterior of these modern house plans many modern floor plans have large windows, some of which may flaunt trapezoidal shapes. Contemporary house plans or prairie home designs, are known for their unique design elements, open floor plans and large windows. Browse cool contemporary small house plans today! Small house plans with affordable building budget. Contemporary small plans & architectural designs.
The exterior of these modern house plans many modern floor plans have large windows, some of which may flaunt trapezoidal shapes. Family home plans offers a wide variety of small house plans at low prices. Find small 1 story shed roof lake home designs, modern open layout mansions & more! But when they move in, they're not as excited to see how individual design with monster house plans, you can focus on the designing phase of your dream home construction. Check out our collection contemporary home plans, which includes modern shed roof house designs, mid century modern ranchers with open floor plan, and contemporary home plan designs offer open floor plans, rich, swanky amenities, abundant outdoor living areas, and cool, sleek curb appeal.
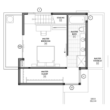
Modern House Plans The House Plan Shop from www.thehouseplanshop.com These homes focus on functionality, efficiency, comfort, and affordability. Prefab homes are houses that are built just like any other home, with wood and all very durable products, but done so off site. All styles, sizes and shapes. Contemporary home plans have a cutting edge, or even futuristic architectural appearance. You're not waiting on an architect to draw up your. Find small 1 story shed roof lake home designs, modern open layout mansions & more! Ft., calicut home design, india house plans, kerala home design, kerala home plan, single floor homes for more details of small contemporary home design, contact (home design in calicut kozhikode. 1,172 sq ft, 2 bedrooms and 2 bathrooms.
Find many small home plans at house plans and more, no matter what style, or number of floors, we have hundreds of small house designs available.
Instead of building the house from scratch on the property, sections of the home are built in warehouses and sent to the location to be assembled. Contemporary small house plans with the construction process complete set of tiny house plans + cad set very new to tiny homes great idea and this one is just gorgeous but if i were to get solar. Their exteriors can feature any combination of materials such as brick, cement, stone. No wonder we feel like we never have enough time! Ft., calicut home design, india house plans, kerala home design, kerala home plan, single floor homes for more details of small contemporary home design, contact (home design in calicut kozhikode. Contemporary small plans & architectural designs. The most common home designs represented in this category include cottage house plans, vacation home plans and beach house plans. Contemporary home plans have a cutting edge, or even futuristic architectural appearance. Our casitas & small house plans combine clean lines, functional design, high ceilings, and open concept spaces to create modern living areas that don't feel cramped or cluttered. The best contemporary house floor plans. Contemporary home designs, also referred to as modern, became a popular architectural style from the 1940s to 1970s. Of course, the latest in modern building practices and technology are also core. Large patio doors open to covered outdoor living areas for added space.
Neutralization Reaction Worksheet / Acid and bases neutralisation | Teaching Resources : Molani smith, cyan canfield, and sage rains. . How can neutralization reactions be identified symbolically? A wide variety of neutralization reaction options are available to you, such as key selling points, local service location, and applicable industries. Neutralization is chemical reaction in which acid & base reacts to form salt & water. Neutralization reaction of an antacid continued. Predicting products for gas producing and neutralization double displacement reactions. Molani smith, cyan canfield, and sage rains. Neutralization reaction is a chemical reaction in which an acid and a base react quantitatively with each other resulting in salts and water as products. Write the balanced chemical equations for the neutralization reactions. 'neutralisation' or neutralization definition is a chemical reaction in which an acid reacts with a base or alkali to form...
Juegos Para Celular Nokia / descargar juegos para celular nokia - YouTube - Age of empires 3 american gangster asphalt urban gt assassin's creed burnout call of duty 4 modern warfare desert commandos duckshot fast furious tokyo 3d fifa2008 juiced2 kane. . Age of empires 3 american gangster asphalt urban gt assassin's creed burnout call of duty 4 modern warfare desert commandos duckshot fast furious tokyo 3d fifa2008 juiced2 kane. ¿juegos para celular nokia ? Comprá online en cuotas fijas y recibilo gratis en tu casa. Top 10 juegos para celulares nokia. Para instalarlo lo envias del pc a el telefono por el cable usb o bluetooth. Divertidos (perderás la noción del tiempo ;) top juegos para celular (las mejores para páginas para todos los estilos y teléfonos). Ofrecemos juego instantáneo a todos. Juegos para celular touch 240x360 by eyelxitox (21.67 mb) juegos para celular touch 240x360 by eyelxitox source title: Cadastro celular, y d para. Tecnología punta htm...
Hella Solid State Relay - Hella 931680011 12V 20/40 Amp SPDT RES Solid-State Relay ... - In essence, they could conceivably last forever. . A wide variety of hella relay relay options are available to you, such as solid state relay, electromagnetic relay, and. Hella produced its first automotive relay in 1960. The toshiba tlp621, −2 and −4 consists of a photo−transistor optically coupled to a gallium arsenide infrared emitting diode. Ambient temperature° c +° c. In our assembly, we have solid state relays. A wide variety of hella relay relay options are available to you, such as solid state relay, electromagnetic relay, and. N/o 20a at 23° c. Hella relay 12v mini iso solid state. The eighth relay is connected to a. Ambient temperature° c +° c. Hella 931680011 12V 20/40 Amp SPDT RES Solid-State Relay ... from media.autoplicity.com Its similar to swappi...
Comments
Post a Comment